Ольчик, вообще ты вовремя.... Есть у нас с Гуру задумка на счет дома. Много проектов пересмотрели. Твой - класс! Без нашего внимания он точно не останется.
Ну, тогда, собирайте все свои наметки и высылайте мне. Какие примерно дома нравятся фасадами, сколько хотите этажей (можно сделать цокольный этаж), сколько должно быть комнат и их назначение? И я продумаю планировку и фасады. Потом, если вам будет нужно, сделаете рабочий проект по эскизному.
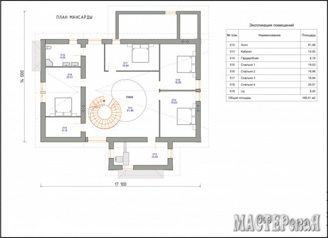
Спасибо. Нужно поискать наши наметки. Для нас главное, чтобы перый этаж был обдним большим холлом, без всяких спален и комнат. Ну только туалет отдельный, конечно. И небольшая сауна. И еще мы хоти второй свет сделать.
Ольчик, вообще ты вовремя.... Есть у нас с Гуру задумка на счет дома. Много проектов пересмотрели. Твой - класс! Без нашего внимания он точно не останется.
 Без нашего внимания он точно не останется.
Этот дом мне тоже особенно нравится! А вам я с удовольствием помогу и с внутренней планировкой и с фасадами.
Да? Теперь будем знать к кому обратиться. У нас уже есть наметки, но, естевственно, всё не до конца продумано
Ну, тогда, собирайте все свои наметки и высылайте мне. Какие примерно дома нравятся фасадами, сколько хотите этажей (можно сделать цокольный этаж), сколько должно быть комнат и их назначение? И я продумаю планировку и фасады. Потом, если вам будет нужно, сделаете рабочий проект по эскизному.
Спасибо. Нужно поискать наши наметки. Для нас главное, чтобы перый этаж был обдним большим холлом, без всяких спален и комнат. Ну только туалет отдельный, конечно. И небольшая сауна. И еще мы хоти второй свет сделать.
Второй свет это отлично! Он и создает ощущение дома а не квартирки)))
Да! Да! Да! Приятно иметь дело со знающим человеком
 Приятно иметь дело со знающим человеком